Residence l’Elan – Chalet Sika

morzine, France

DESCRIPTION

  • Réf. : VA2612-MC
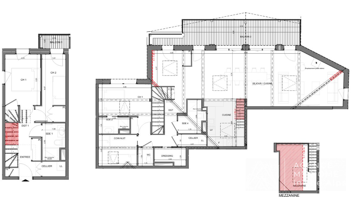
  • Surface : 144.42m2
  • Chambres : 3

Morzine fait partie des stations les plus prisées des Alpes, réputée pour son atmosphère chaleureuse et son dynamisme tout au long de l’année.

Cette résidence bénéficie d’une situation privilégiée en plein coeur du village, à seulement trois minutes à pied des télécabines de Super Morzine et du Pleney, offrant un accès direct aux domaines skiables et aux pistes de VTT parmi les plus renommés de la région. Avec ses restaurants, ses commerces et ses cafés à proximité immédiate, tout est réuni pour profiter pleinement de la vie de village, que ce soit pour un séjour de vacances ou pour une résidence principale.

Ce programme se compose de deux superbes penthouses et d’un vaste appartement de cinq chambres. Les penthouses offrent de généreux volumes avec trois chambres, un dortoir, ainsi qu’une grande mezzanine modulable pouvant être aménagée en bureau, salle de jeux ou chambre supplémentaire. L’appartement familial, quant à lui, bénéficie d’une triple exposition et de balcons sur toutes les façades, garantissant une luminosité optimale. L’architecture typiquement alpine, associée à de larges balcons en bois sculpté et à des prestations haut de gamme, illustre parfaitement le savoir-faire du promoteur, reconnu comme l’un des acteurs majeurs de Morzine. Grâce à sa localisation centrale, à la qualité de ses finitions et à ses volumes généreux, cette résidence présente un excellent potentiel locatif.

La proximité immédiate des remontées mécaniques et de toutes les commodités du village assure une forte attractivité, aussi bien en saison hivernale qu’estivale. Ces biens “clés en main”, vendus avec parking souterrain et cave, représentent une opportunité rare pour les familles ou les investisseurs à la recherche d’un bien d’exception à Morzine.

En outre, en tant que programme neuf, les frais de notaire sont réduits à environ 2 %, et la récupération de la TVA sur le prix d’achat permet de bénéficier d’un avantage financier significatif d’environ 20 %.

Dans une copropriété de 50 lots. Aucune procédure n’est en cours. DPE en cours. Les informations sur les risques auxquels ce bien est exposé sont disponibles sur le site Géorisques : georisques.gouv.fr.

PRÉSENTATION DE LA PROPRIÉTÉ

  • Prix : 1 750 000 €
  • Situation :Morzine
  • Types de propriétés : Appartements.
  • Exposition :Est, Nord
  • Non meublé
  • Année de construction :2024
  • Type de chauffage :Chauffage au sol
Demande d'information
Prix
1 750 000 €

Carte

AUTRES PROPRIÉTÉS QUE VOUS POUVEZ ENVISAGER