Résidence l’Elan – Chalet Sika – Appartement C303

morzine, France

DESCRIPTION

  • Ref. VA2612-MC
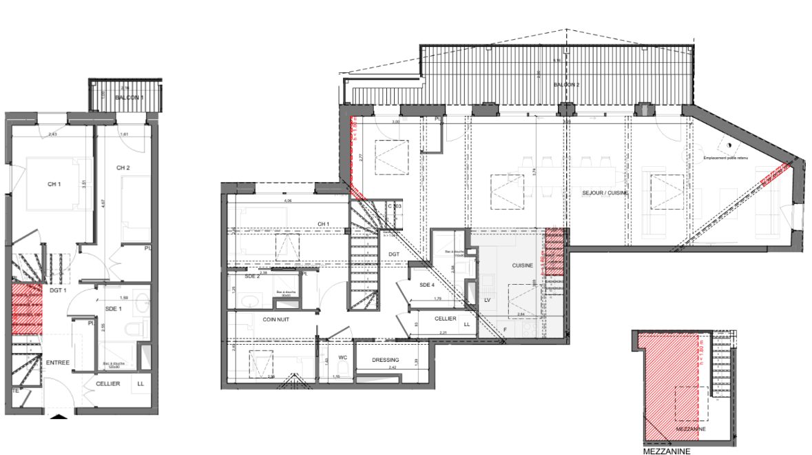
  • Area : 144,42m2
  • Bedrooms : 3

Morzine ranks among the most sought-after resorts in the French Alps, renowned for its warm atmosphere and year-round vibrancy. This residence enjoys a prime central location in the heart of the village, just a three-minute walk from both the Super Morzine and Pleney gondolas, offering direct access to some of the most famous ski slopes and mountain bike trails in the region. With restaurants, shops, and cafés just around the corner, everything is within easy reach — making it an ideal setting for both holidays and year-round living.

The development consists of two stunning penthouses and a spacious five-bedroom apartment. The penthouses offer generous living spaces with three bedrooms, a bunk room, and a large mezzanine that can be adapted into an office, playroom, or additional bedroom. The family apartment benefits from triple exposure and balconies on all sides, ensuring exceptional light throughout the day. The traditional Alpine architecture, enhanced by wide sculpted wooden balconies and high-end finishes, perfectly showcases the craftsmanship of one of Morzine’s most reputable developers.

Thanks to its central location, premium finishes, and spacious layouts, the residence offers excellent rental potential. Its immediate proximity to the ski lifts and all village amenities guarantees strong demand throughout both winter and summer seasons. Delivered fully finished, with underground parking and private storage, these properties represent a rare opportunity for families or investors seeking an exceptional home in Morzine.

As a new-build development, buyers also benefit from reduced notary fees of around 2%, as well as the ability to reclaim 20% VAT on the purchase price, making this an attractive and secure investment with both immediate rental income and long-term capital growth potential.
In a condominium of 50 lots. No ongoing proceedings. DPE in progress. Information on the risks to which this property is exposed is available on the Geohazards website: georisques.gouv.fr.

Property Overview

  • Price : 1 750 000 €
  • Monthly charges :0.00
  • Situation :Morzine
  • Properties Type: Apartments and Apartments.
  • Exposure :Est, Nord
  • Unfurnished
  • Year of construction :2024
Request for Information
Price
1 750 000 €

Map

Other properties you might like